- Projekte / Mainensemble
Seligenstadt
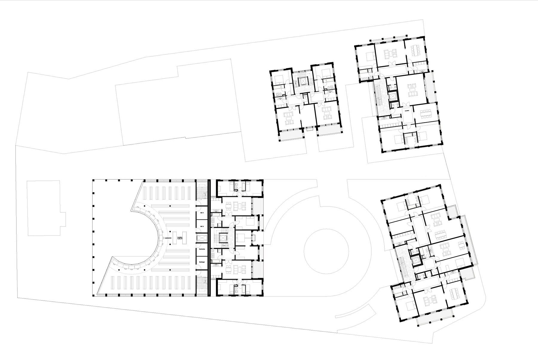
Bibliothek und Stadtvillen am Main
Planungsstudie 2008
Werkmann GmbH & Co. KG
BGF Bibliothek: 1.200 qm; BGF Stadtvillen: 4.800 qm
Mit der Bebauung des ehemaligen Stadtwerkegeländes am Main wird eine ungewöhnlich attraktive Fläche in direkter Nachbarschaft zum historischen Stadtkern Seligenstadts für hochwertiges Wohnen gewonnen. Am “Steinheimer Turm“ gruppieren sich großzügig geschnittene Wohnungen um einen halböffentlichen, nach Süden offenen Platz mit Wasserspielen. Die drei- bis viergeschossigen Gebäude mit Ausrichtung zum Main haben helle Putzfassaden mit bodentiefen Fenstern in regelmäßigen Abständen. Faschen und Lisenen gliedern die Flächen, auskragende Gesimsbänder betonen den Abschluss der dreigeschossigen Hauptbaukörper. Die Eingangsbereiche und Wintergärten der Wohnhäuser differenzieren das Fassadenbild mit großen Verglasungsflächen in bronzefarbenen Metallkonstruktionen. Zur Stadtseite liegt die Bibliothek. Ein von schlanken, gebäudehohen Pfeilern umgebener kreisförmiger Hof führt zum Haupteingang.





