Novecento
Novecento
Novecento
Novecento
Novecento
Novecento
Novecento
Novecento
Novecento

Milano
Novecento Piu Cento
Offener Wettbewerb, 2021

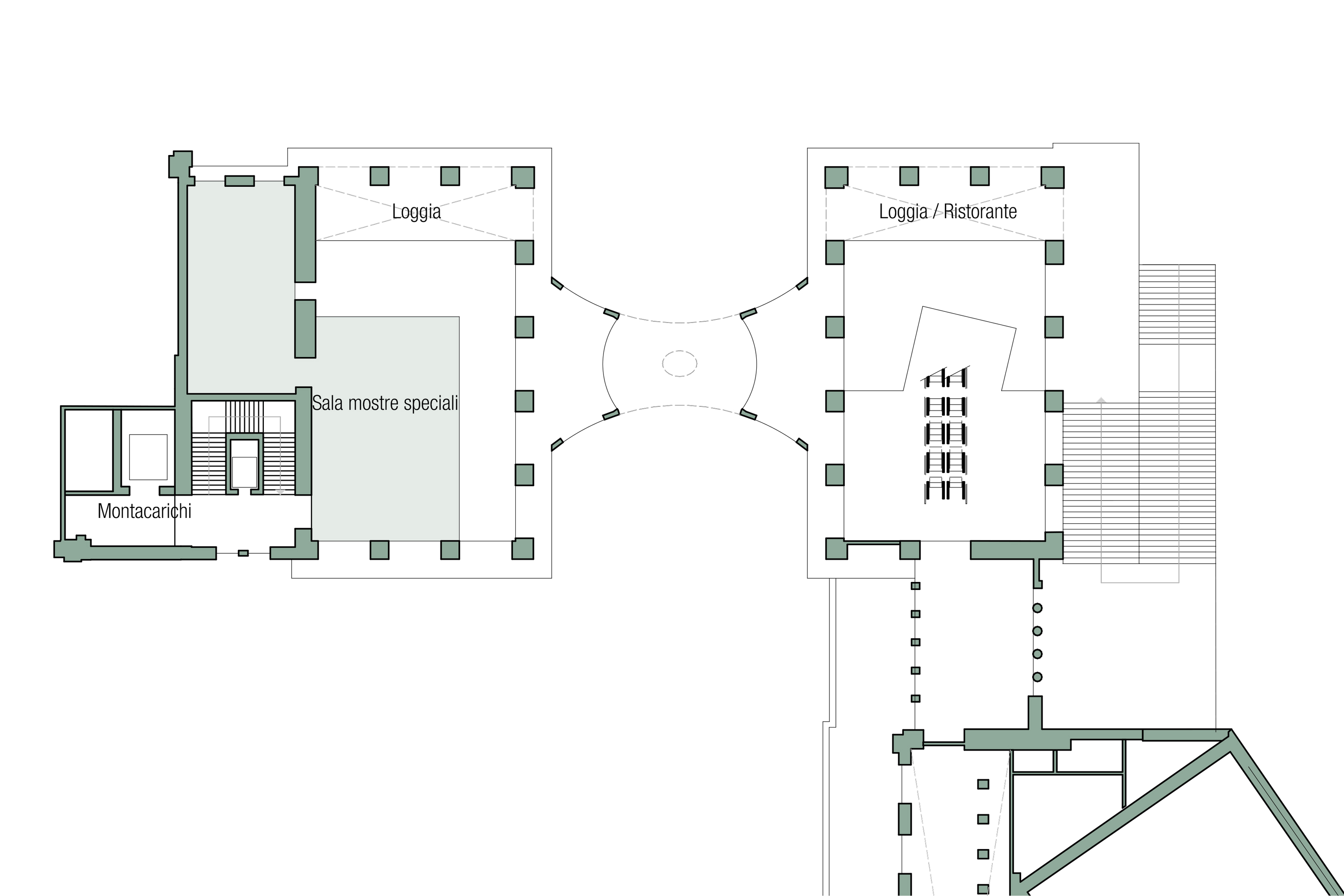
Der Entwurf basiert auf Giuseppe Mengonis unvollendetem Plan für die Piazza del Duomo aus dem Jahr 1863. Das hier vorgeschlagene neue Südtor, das auf die Via Marconi führt, verbindet die beiden Arengario-Türme auf ihrer oberen Ebene und vereint so die Flächen beider Gebäude zu einem zusammenhängenden Ausstellungskomplex für moderne und zeitgenössische Kunst. Von der Galleria Vittorio Emanuelle II wird die Blickachse räumlich und visuell gefasst und der Museumseingang in den Fokus gerückt. Das Tor selbst ist geschwungen und umfasst zur Via Marconi und zum Domplatz zwei kleine halbrunde Plätze, die als Fortsetzung der Ausstellungsflächen des Museums in den öffentlichen Raum gedacht sind. Diese Vorplätze erleichtern auch die Übergänge zu den Eingangsbereichen auf beiden Seiten des Bogens. Als eine moderne und doch zeitlose Interpretation steht die neue Verbindung der beiden Arengario-Türme nicht in Konkurrenz zum Entwurf von Griffini, Magistretti, Muzio und Portaluppi, sondern vervollständigt ihn. Seine architektonische Identität bezieht das Tor aus vertrauten Bildern, ohne im hochsensiblen Kontext des Domplatzes Präsenz und Originalität einzubüßen. Konstruktiv unabhängig von den beiden flankierenden Türmen berührt die mit patinierter Bronze bekleidete Stahlkonstruktion des Bogentors nur minimal die bestehenden Gebäude. Auf der unteren Brückenebene befinden zwei große Aussichtsbalkone auf den Domplatz, die vom Museum und dem Restaurant zugänglich sind. Die eigentliche Brücke auf der oberen Ebene ist überdacht und dient auch als Aussichtsplattform mit Blick auf die Piazza del Duomo und die Piazza Diaz. Die Verbindung der beiden Türme ist auf der obersten Ebene positioniert, um den natürlichen Fluss des Besucherrundgangs, wie er ursprünglich von Italo Rota & Partners geplant war, aufrechterhalten zu können. Am Ende des Rundgangs im ersten Arengario können Besucher von der Sala Fontana in den Ausstellungsraum wechseln, der im obersten Stockwerk des zweiten Arengario Werke international renommierter Künstler beherbergt.

Projektteam: Jens Jakob Happ, Roberto Roel, Nan Wu, Sebastian Falconi