- Projekte / Wohnsiedlung Waidmatt
Waidmatt residential settlement, Zürich-Affoltern
replacement construction, residential area 5-7
open project competition, 2016
282 rental flats, gross floor area 26,000 sqm
Waidmatt housing cooperation (Baugenossenschaft Waidmatt)
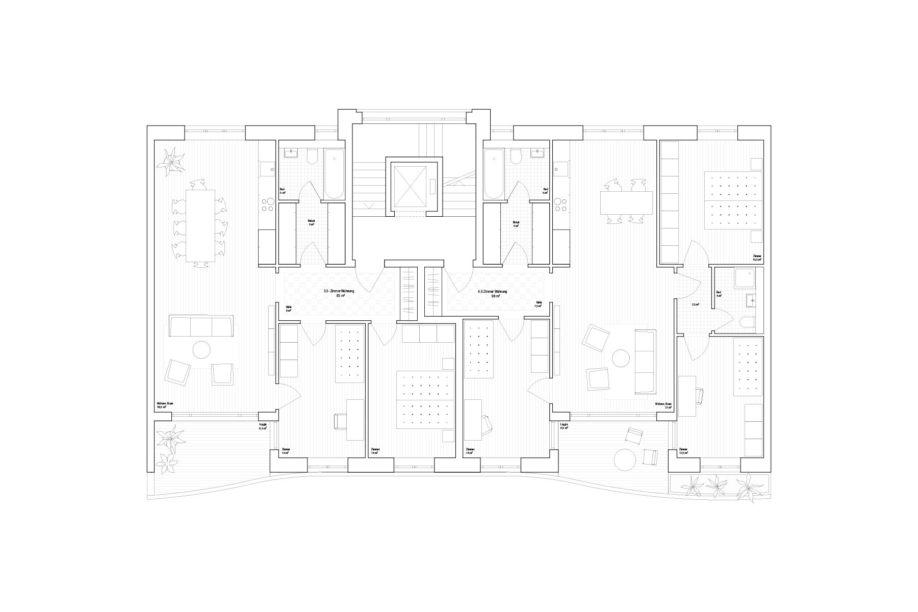
Starting point for our initial brainstorming was the question of how a sense of community and belonging within the cooperation can be preserved and nourished by the new buildings. The basic form of the characteristic arches links the four plots together in a formal sense and gives the settlement both identity and expression. Curved rows of houses define new urban spaces and create a clear distinction between the in-and the outside. Within the row, the house is the yardstick. With a street-facing entrance, individually designed front gardens, a vertical zoning and characteristic facade structure, the house is a clearly defined individual part of the whole, underlining the sense of community.
project team: Jens Jakob Happ, Tobias Schafroth
landscape architecture: Bryum, Michael Oser und Anna Domeniconi






